GB 8772-2011是我国针对电视教室(如多媒体教室、电化教室)制定的卫生标准,主要规定了座位布置范围和照度要求,旨在保障学生视力健康,提高教学效果。该标准适用于中小学、高校及职业学校的电视教室设计。

1. 座位布置范围(观看距离与视角)
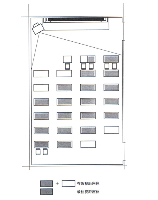
电视教室的座位安排直接影响学生的观看舒适度和视力保护,标准主要从观看距离和视角两方面进行规范。
(1)观看距离要求
最小观看距离:学生座位离屏幕最近距离不得小于屏幕高度的4倍。
例如,屏幕高度为1米,最近座位至少距离4米。
最大观看距离:最远座位不得超过屏幕高度的12倍。
如屏幕高1米,最远座位不超过12米。
科学依据:
距离过近易导致眼睛疲劳,甚至近视加深。
距离过远则可能看不清细节,影响学习效果。
(2)视角要求
水平视角:学生视线与屏幕中心线的夹角不应超过45°(即座位不应过于偏离屏幕正前方)。
垂直视角:学生视线与屏幕顶部的夹角不应超过30°(避免仰头或低头过久)。
优化建议:
教室座位宜采用扇形或阶梯式布局,确保所有学生都能清晰观看。
避免前排座位过低或后排座位过高,防止颈椎疲劳。
2. 照度要求(光线亮度标准)
电视教室的光照环境既要保证屏幕清晰可见,又要避免反光或眩光影响视力。标准对屏幕照度和环境照度分别作出规定。
(1)屏幕照度(屏幕亮度)
屏幕中心亮度:应≥150 cd/m²(坎德拉/平方米),确保画面清晰。
屏幕亮度均匀性:屏幕四角亮度不得低于中心亮度的70%(避免局部过暗)。
(2)环境照度(教室整体光线)
讲台区域:300-500 lx(勒克斯),便于教师板书或操作设备。
学生座位区:150-300 lx,避免过亮干扰屏幕观看,或过暗导致用眼疲劳。
黑板区域(如有):≥500 lx,确保板书清晰可见。
关键注意事项:
避免直射光照射屏幕,否则会产生反光,建议使用漫反射照明或遮光窗帘。
色温选择:推荐使用4000K-5500K的中性白光,接近自然光,减少眼睛疲劳。

保护学生视力:科学控制观看距离和光线,降低近视风险。
提升教学效果:合理的座位布局和光照环境能让学生更专注,减少视觉干扰。
规范教室设计:为学校建设或改造电视教室提供明确依据,避免不合理设计。
教室设计阶段
根据屏幕尺寸计算最佳座位范围(如65英寸电视,屏幕高约0.8米,则最近距离≥3.2米,最远≤9.6米)。
采用可调节照明系统,适应不同教学模式(如观影、板书、小组讨论)。
日常使用管理
定期检查屏幕亮度和灯泡衰减情况,及时更换老化设备。
调整窗帘或灯光角度,避免阳光或灯光直射屏幕。
学生健康监测
关注学生反馈,如频繁眯眼、揉眼,可能是座位或光线问题,需及时调整。
GB 8772-2011通过科学的座位布置和照度标准,为电视教室提供了健康、舒适的学习环境。学校在建设或改造多媒体教室时,应严格遵循该标准,并结合实际需求优化细节,才能真正保护学生视力,提高教学效率。


客服一